Designer Shed Plans

FREE SHED PLANS   +  FREE CONSTRUCTION GUIDE    FREE MATERIAL LISTS  + CATALOG  +   LINKS

CUSTOMER SERVICE  +   SAMPLES OF OUR SHED PLANS   +   PLAN FINDER  +   PHOTOS    +    CONTACT US

REGULAR SHED PLANS DESIGNER SHED PLANS BIGGER SHED PLANS BARN PLANS ONLY ALL OF OUR PLANS
$4.95 - $14.95 $24.95 $34.95 $4.95 - $34.95 $4.95 - $34.95

SAMPLES  OF  OUR  SHED  PLANS

 

Compliments of

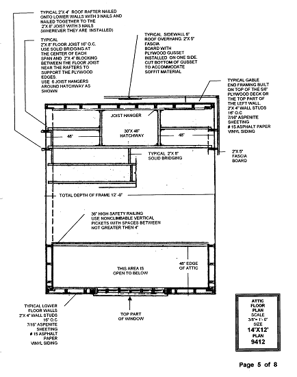
Pictured here are a few pages chosen at random to show what our plans and construction guide illustrations look like. They are shown in much smaller and different scales. 

Our plans come complete showing in great detail the required

FLOOR PLANS

ELEVATIONS

MANY CROSS SECTIONS

CONCRETE PAD INFORMATION

RAFTER CUTTING LAYOUT

SPECIFICATIONS

a very comprehensive

MATERIALS LIST   

and our exclusive

ACTUAL SIZE RAFTER

CUTTING TEMPLATES.

 

 

Want more information about our products? Visit our sister site.

 

There you can see and print out free shed plans. Or you can select to buy from over 80 regular shed plans. All of our orders are made on our sister site. 

 

Our phone number appears on your completed purchase order. 

WHO HAS NICER PLANS?           WHO EVEN SHOWS YOU SAMPLES?

If you would like to have a complete set of plans for a nice 10'X8' shed that is free visit our sister site.

 

If you are enjoying our web site please    

 

Copyright © 2003 Just Sheds Inc. All rights reserved.